2 Knoll Dr
Fletcher, NC 28732

Images

3D Tour

Content Coming Soon

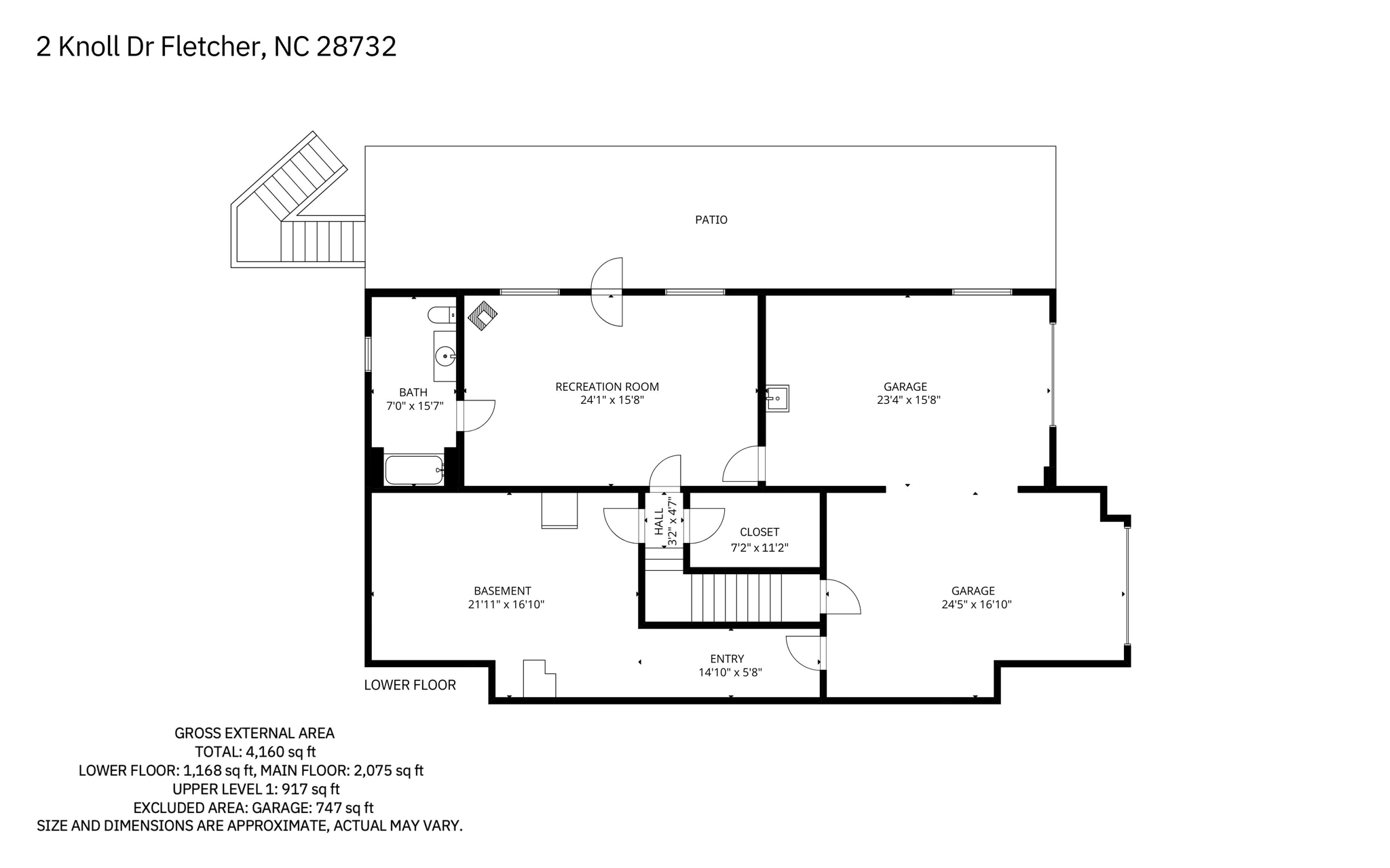
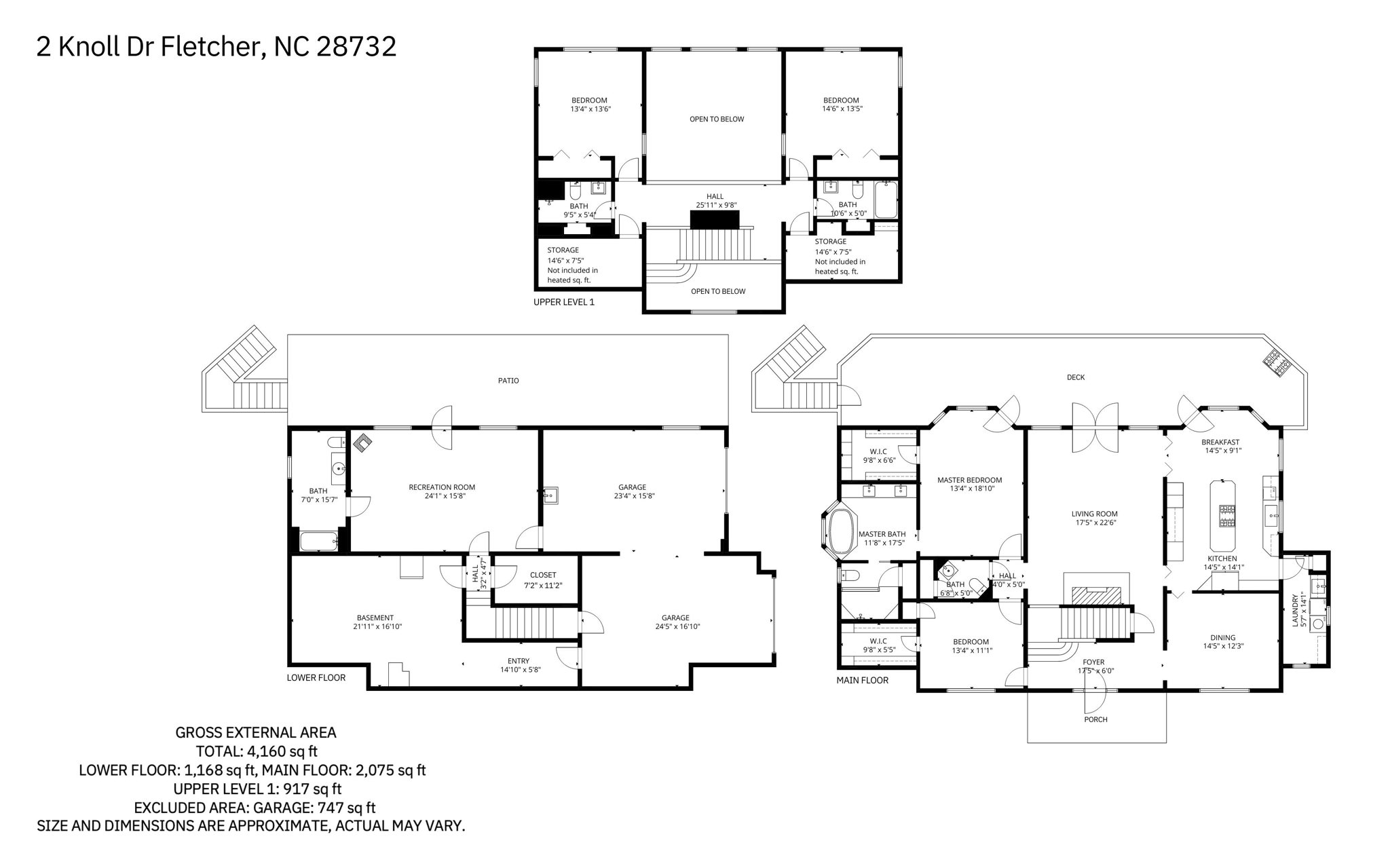
Floor Plans